ORT
Streitfeldstraße 23, 81673 München
AUFTRAGGEBER:
Landeshauptstadt München, Kommunalreferat
LEISTUNGSPHASEN
2 bis 9
AUSFÜHRUNGSZEITRAUM
2015 – 2016
PROJEKTBESCHREIBUNG
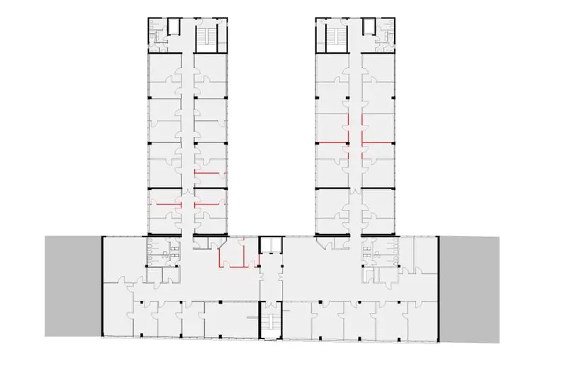
Im bestehenden Sozialbürgerhaus wurden durch räumliche Strukturierung flexible Büroeinheiten geschaffen und die Raumgrößen an die veränderten Arbeitssituationen angepasst. Schwerpunkt war hierbei die Nachverdichtung durch Schaffung zusätzlicher Büroeinheiten. Die Erneuerung der elektrotechnischen Installationen (Datentechnik, Sicherheitstechnik, Beleuchtung in LED Technologie) wurde in den gesamten Flächen realisiert.
Die dem Sozialbürgerhaus zugehörigen Bereiche sind durch Verbesserung der Erschließung und einem nachvollziehbaren Farbkonzept klarer von gleichfalls im Gebäude vorhandenen Fremdnutzungen abgegrenzt.
Die Maßnahme erfolgte in zwei Bauabschnitten. Im Bereich des Sozialbürgerhauses wurde die Umsetzung geschossweise durchgeführt, um den laufenden Betrieb gewährleisten zu können. Die Koordination der Ausführung mit dem Umzugsmanagement des Nutzers erforderte eine kontinuierliche und enge Abstimmung. Die Baustellenlogistik sowie Schutz- und Sicherheitsmaßnahmen waren in Anbetracht des laufenden Betriebs und des Parteiverkehrs gleichfalls präzise und durchgängig zu steuern und zu kontrollieren.
Sämtliche Ausführungen der Arbeiten fanden im laufenden Betrieb mit Parteiverkehr statt.
Besonderheiten der Maßnahme:
– Raumstrukturelle Änderungen im Bestand
– Schadstoffsanierungen in betroffenen Bereichen
– Komplexe Bauablaufsteuerung
– Aufteilung der Maßnahme in mehrere Bauabschnitte
– Ausführungen in Sicherheitszonen (Kassenbereich)






