ORT
Roßsteinstraße 8, 81673 München
AUFTRAGGEBER:
Landeshauptstadt München, Referat für Bildung und Sport
LEISTUNGSPHASEN
2 bis 9
AUSFÜHRUNGSZEITRAUM
2013 – 2014
PROJEKTBESCHREIBUNG
Städtebau:
Das Haus für Kinder ist der westliche Abschluss eines im Jahre 2006 gemeinsam von der Landeshauptstadt München und Bauhaus München entwickelten neuen Wohnquartiers entlang der Hansjakobstraße.
Architektur:
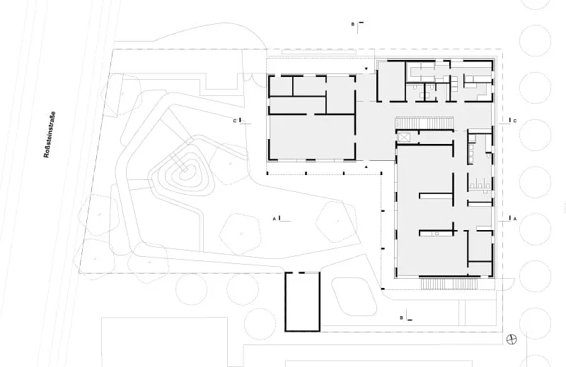
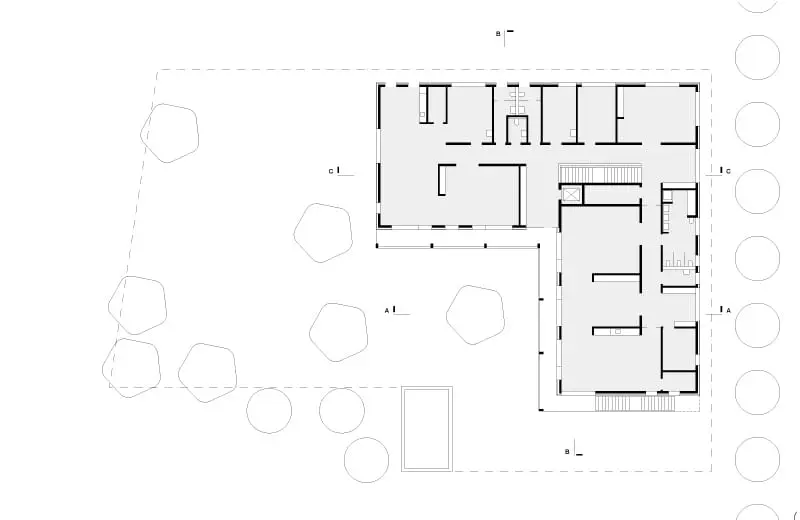
Erschließung
Der zweigeschossige Baukörper separiert sich durch die L-Form von der Wohnbebauung. Die Eingangszone in Form eines kleineren Foyers bildet den Vorbereich zum Mehrzweckraum, stellt die Verbindung und direkte Erschließung der Außenspielfläche her und dient zugleich den Eltern als Aufenthalts- und Empfangsmöglichkeit. Die interne Erschließung über eine von oben belichtete zentrale und offene Treppe verbindet Erd- und Obergeschoss, bildet aber gleichzeitig eine Zäsur zwischen den Nutzungen Mehrzweckraum/Hort und Kinderkrippe/Kindergarten.
Ausrichtung
Die Gemeinschaftsräume orientieren sich zur in Süd- bzw. Westrichtung liegenden Gartenseite, während die Nebenraumzonen mit Sanitäranlagen, Küche, Personal.- und Technikräume ost- und nordseitig angeordnet sind. Fassadenöffnungen auf der Ostseite in den Garderobenbereichen der Krippen- und Kindergartengruppen geben den Blick in die Umgebung frei und verstärken die Orientierung, das Eingebunden-Sein in die 3-4 geschossigen Wohngebäude sowie des nördlich anschließenden Parks. Das offenere pädagogische Konzept findet u.a. in der Ausbildung von großen transparenten Öffnungsmöglichkeiten zwischen den einzelnen, von unterschiedlichen Altersgruppen genutzten Räumen seine Umsetzung. Somit ist eine bessere Steuerung von interner Dynamik, Konzentration und Abgrenzung innerhalb des Tagesablaufes möglich, immer aber nutzerabhängig und möglichst flexibel. Die Gebäudeform selbst ist darauf angelegt über Sichtbeziehungen als auch der vorgelagerten Loggia die Nutzungsbereiche diagonal zu verbinden.
Materialität
Der Gegensatz von harten und weichen, glatten und rauen Materialien sowie Oberflächen bietet ein haptisches Angebot, welches durch die ausgewogene und zurückhaltende Farbgebung ergänzt wird. Die Sichtbetonfassade und in den Erschließungsflächen roh belassenen Stahlbetondecken kontrastieren mit den weicheren Bodenbelägen und den farbig behandelten Holzfensterelementen als auch Schreinereinbauten. Sämtliche Aufenthaltsräume sind mit akustisch wirksamen Bekleidungen ausgestattet, die der frühkindlichen Sprachentwicklung dienen und ein angenehmes Arbeitsklima gewährleisten. Immer aber steht das Kind im Mittelpunkt, mit der Aufgabe und Möglichkeit, sich selbst die Umgebung, den Raum, die Spielecke erobern zu können.
Fassade, Konstruktion und Gebäudetechnik:
Das Gebäude ist in Massivbauweise konzipiert. Die vorgefertigten Fassadenelemente in Sichtbeton ermöglichen eine Verkürzung der Ausführungszeit, unterstreichen in ihrer monolithischen, werkstoffartigen Wirkung die Besonderheit des Ortes, der öffentlichen Nutzung und bilden den innenräumlichen Ansatz ab, klare und neutrale Räume anzubieten. Entsprechend ihrer Anforderung reagiert die Fassadenfläche über Fensteröffnungen mit differenzierten Öffnungsgraden und lässt damit die innere Organisation erahnen. Lichtführung, Farbgebung und die geplanten baukünstlerischen Eingriffe sollen mit zurückhaltenden Mitteln die Wahrnehmungspotentiale der Kinder wecken und verstärken.
Gebäudetechnik
Das Flachdach wird mit einer extensiven Begrünung ausgeführt. Der angrenzende Siedlungsbau mit großflächigen Tiefgaragen erfordert erhöhte Auflagen bezüglich der Durchlässigkeit des Grundwassers, worauf des Haus für Kinder mit Verzicht auf eine Unterkellerung reagiert. Als nachhaltige und CO2 einsparende Maßnahme kommt eine Wärmepumpe mit elektrischer Warmwasserbereitung zum Einsatz, welche die flächendeckende Fußbodenheizung im Niedertemperaturbetrieb speist.








